
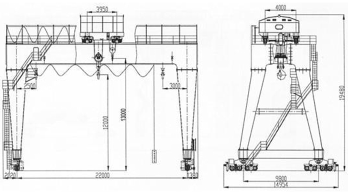
тяжелый подъемный кран, двухходовой козловой кран 30 тонн
Двойной кран-козловой кран с крючками применяется снаружи склада или в боковом направлении для выполнения общих подъемно-разгрузочных работ. Этот вид крана состоит из моста, опорных ножек, кранового движущегося органа, тележки с сильной подъемной лебедкой, электрооборудования и системы управления. В качестве своего сверхмощного дизайна он может широко использоваться во всех видах промышленного поля.




