
Краткое описание:
Европейский однобалочный подвесной кран - это компактные подъемные механизмы, разработанные и изготовленные в строгом соответствии с стандартами FEM и DIN, которые имеют передовые технологии и красивый дизайн. Разделенный на общий тип и тип подвески, поддерживающий использование электрического подъемника европейского стандарта, подходящего для обработки мастерских и складских материалов, точного монтажа больших деталей и других мест.

Он может широко использоваться в машиностроении, металлургии, нефтяной, нефтедобывающей, портовой, железнодорожной, гражданской авиации, пищевой промышленности, производстве бумаги, строительстве, электронике, мастерской, складских и других условиях обработки материалов, особенно. применяется для обработки материалов, которые нуждаются в точном позиционировании, с большими деталями в сборке.

Подробные изображения:

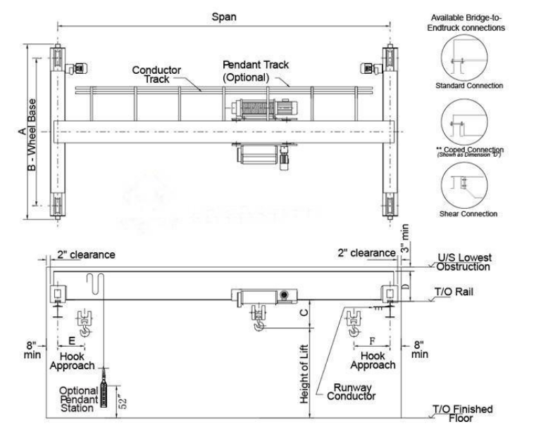
Рисунок эскиза:

Технические характеристики:
пядь | м | 7,5 | 10,5 | 13,5 | 16,5 | +19,5 | 22,5 | +25,5 |
Вместимость | T | 1 ~ 12.5t | ||||||
Общий вес | кг | 1781 ~ 12086 | ||||||
Вес тележки | кг | 405 ~ 740 | ||||||
Максимум. Нагрузка колес | кп | 13,5 ~ 90,94 | ||||||
Железнодорожный транспорт | P24 ~ P43 | |||||||
Скорость подъема | м / мин | 0.8 / 5 | 0.8 / 5 | 0.8 / 5 | 0.8 / 5 | 0.8 / 5 | 0.8 / 5 | 0.8 / 5 |
Высота подъема | м | ≥ 6 | ≥ 6 | ≥ 6 | ≥ 6 | ≥ 6 | ≥ 6 | ≥ 6 |
Общая мощность двигателя | кВт | 4,31 | 4,31 | 4,31 | 4,31 | 4,67 | 4,67 | 4,67 |
Скорость крана | м / мин | 3-30 | 3-30 | 3-30 | 3-30 | 3-30 | 3-30 | 3-30 |
Скорость тележки | м / мин | 2-20 | 2-20 | 2-20 | 2-20 | 2-20 | 2-20 | 2-20 |
Рабочий режим | M5 / А5 | |||||||
